
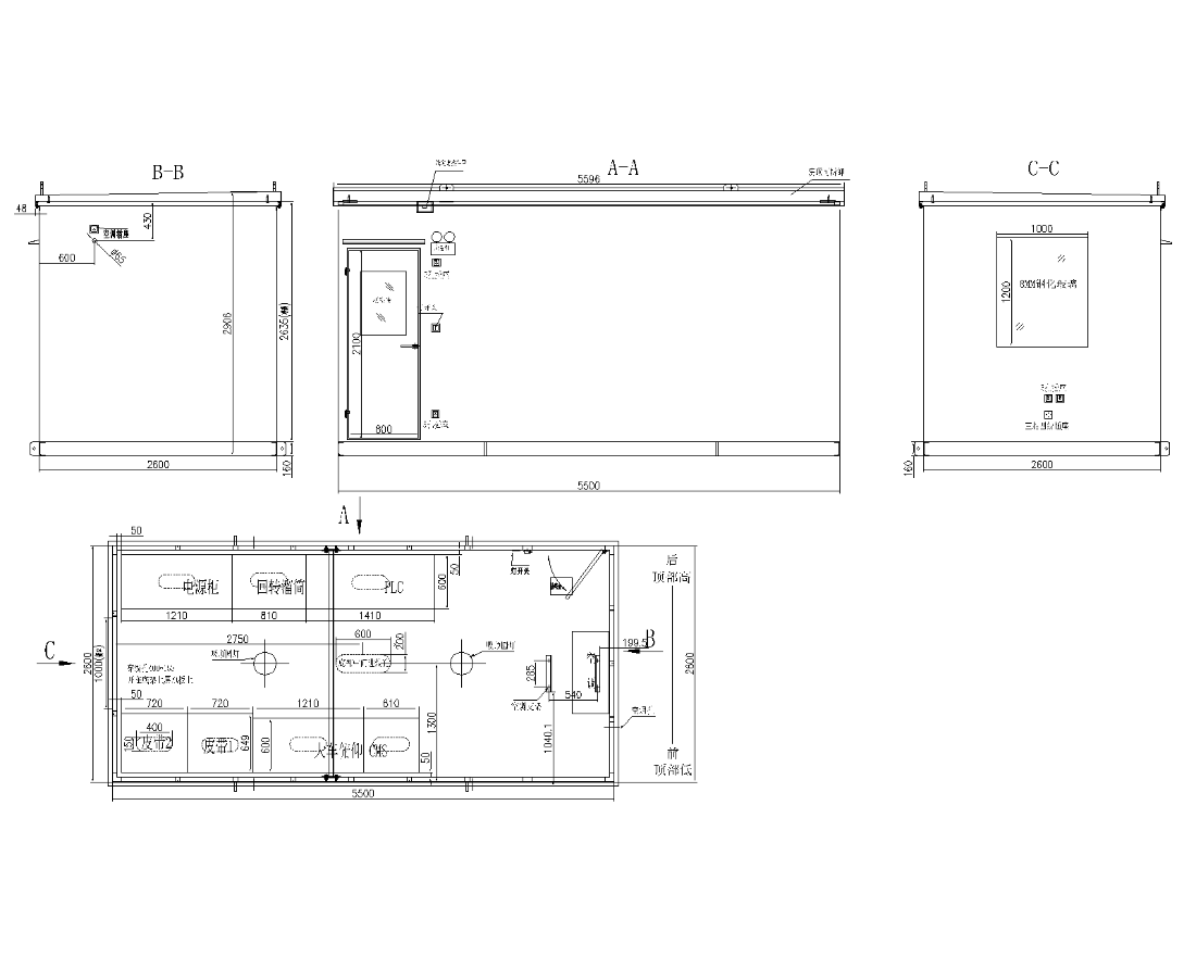
The outer laver ofthe wall adonts steel plates/corrueated plates with a thickness of not ess than 2mm, with class Athermal insulation materials in the middle, and firepro of inner sealing steel plates on the innerlayer, providing excellentire resistance, thermal insulation, and heat preservation performance, The base and skeleton are made of profilescombined with bent steel plates to ensure structural stability for long-term use.
01 Hazard-ProofLuminaire
02 Fire Extinguisher
03 Switch & Receptacle
01 Flame-Retardant Curtain
02 Coordinated Control Console
03 Electric Windshield Wiper System
04 Automotive-grade Leatherette Interior
05 Custom Spray Marking06 Ancillary Accessories

Scan the QR code