Aleading enterprise specializingin crane electrical systems and sheet metal manufacturing
TEL:
0086-576-83230902
Products center
产品展示
Contact us
  •    Tel:0086-576-83230902
  •    Add:No.22 Henggang Road, Hairun Street,Sanmen County, Zhejiang
  •    Email:277960671@qq.com
  •    Url:http://www.zqdq99.com
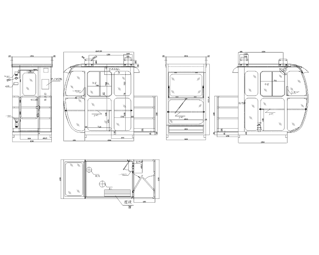
QSQ3 Bridge Crane cab

Category:Driver's Cab Series

Contacts Us
Tel:0086-576-83230902
E-Mail:277960671@qq.com


APPLICATION SCOPE

Widely applied in lifting and transport machinery across construction, energy, mining, transportation and logisticssectors.In construction sector for tower cranes and overhead lifting equipment,Supports power transmission towers andwind turbine installation in energy industry;Covers both surface and underground operations in mining machinery.Port,railway, highway and airport equipment feature dedicated cabs ensuring safe and eficient operation.

KEY FEATURES

Structure&Materials

Externally constructed with 2.0mm cold-rolled steelwelding, featuring extruded profiles and bent steel panecomposite framework.Interior finished with formicapanels,complete with powder coating for corrosionprotection.

Safety Features

5mm tempered glass windows,aluminum alloy slidingwindows, industrial-grade doorlocks and safetyguardrails ensure optimal visibility and operationalsecurity.

Design Characteristics

Lightweight high-load-bearing framework with modularassembly, engineered forharsh operatingconditions whilemeeting lS06385 ergonomic standards.


STANDARD CONFIGURATION

01 lumination Lamp

02 Ventilation Fan

03 Switches& Receptacles

04 Fire Extinguisher

05 Electric Bell

06 Foot Switch

07 Coat Hook

08 Limit Switch

09 Terminal Box


OPTIONAL FEATURES

01 Alarm Device

02 Emergency Luminaire

03 Air ConditioningUnit

04 Coordinated ControlConsole

05 Curtain Assembly

06 Leatherette&SteelPanelInterior

07 Access Walkway

08 AncillaryAccessories

QSQ3.png

Scan the QR code
Seach

Copyright © Zhejiang Zhengqi Electric Co.,Ltd  2025
备案号:浙ICP备2025186885号-1  浙公网安备33102202000446号