
Widely applied in lifting and transport machinery across construction, energy, mining, transportation and logisticssectors.In construction sector for tower cranes and overhead lifting equipment,Supports power transmission towers andwind turbine installation in energy industry;Covers both surface and underground operations in mining machinery.Port,railway, highway and airport equipment feature dedicated cabs ensuring safe and eficient operation.
Structure&Materials
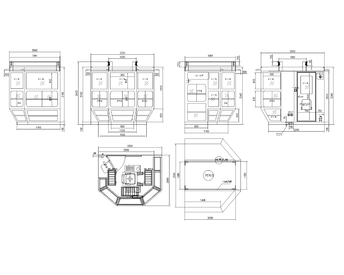
Externally constructed with 2.0mm cold-rolled steelwelding, featuring extruded profiles and bent steel panecomposite framework.Interior finished with formicapanels,complete with powder coating for corrosionprotection.
Safety Features
5mm tempered glass windows,aluminum alloy slidingwindows, industrial-grade doorlocks and safetyguardrails ensure optimal visibility and operationalsecurity.
Design Characteristics
Lightweight high-load-bearing framework with modularassembly, engineered forharsh operatingconditions whilemeeting lS06385 ergonomic standards.
01 lumination Lamp
02 Ventilation Fan
03 Switches& Receptacles
04 Fire Extinguisher
05 Electric Bell
06 Foot Switch
07 Coat Hook
08 Limit Switch
09 Terminal Box
01 Alarm Device
02 Emergency Luminaire
03 Air ConditioningUnit
04 Coordinated ControlConsole
05 Curtain Assembly
06 Leatherette&SteelPanelInterior
07 Access Walkway
08 AncillaryAccessories

Scan the QR code