Aleading enterprise specializingin crane electrical systems and sheet metal manufacturing
TEL:
0086-576-83230902
Products center
产品展示
Contact us
  •    Tel:0086-576-83230902
  •    Add:No.22 Henggang Road, Hairun Street,Sanmen County, Zhejiang
  •    Email:277960671@qq.com
  •    Url:http://www.zqdq99.com
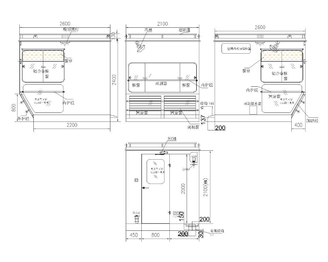
QSG6 Port Machinery cab

Category:Driver's Cab Series

Contacts Us
Tel:0086-576-83230902
E-Mail:277960671@qq.com


APPLICATION SCOPE

Widely applied in lifting and transport machinery across construction, energy, mining, transportation and logisticssectors.In construction sector for tower cranes and overhead lifting equipment,Supports power transmission towers andwind turbine installation in energy industry;Covers both surface and underground operations in mining machinery.Port,railway, highway and airport equipment feature dedicated cabs ensuring safe and eficient operation.

KEY FEATURES

StructuralMaterials

Externally constructed with 2.0mm cold-rolled steelwelding,featuring extruded profiles + bent steel panelcomposite framework.Interior finished with formicapanels,withfull powder coatingfor corrosion protection.

Safety Features

5mm tempered glass windows,aluminum slidingwindows,industrial-grade door locks and safetyguardrails ensure optimalvisibility and security.

Design characteristics

Lightweight high-load-bearing structure with modularassembly,engineered for harsh operating conditions while complying with lS0 6385 ergonomic standards.


STANDARD CONFIGURATION

01 lumination Luminaire

02 Ventilation Fan

03 Switch & Receptacle

04 Fire Extinguisher

05 Electric Alarm Bell

06 Foot-operated Switch

07 Coat Hook

08 Limit Switch

09 ManualWindshield Wiper

OPTIONAL FEATURES

01 Acoustic Alarm Device

02 EmergencyLightingSystem

03 Air Conditioning Unit

04 Coordinated Control Console

05 Curtain Assembly

06 Leatherette&SteelPanelInterior

07 Ancilary Accessories

QSG6.png

Scan the QR code
Seach

Copyright © Zhejiang Zhengqi Electric Co.,Ltd  2025
备案号:浙ICP备2025186885号-1  浙公网安备33102202000446号