
Widely applied in lifting and transport machinery across construction, energy, mining, transportation and logisticssectors.In construction sector for tower cranes and overhead lifting equipment,Supports power transmission towers andwind turbine installation in energy industry;Covers both surface and underground operations in mining machinery.Port,railway, highway and airport equipment feature dedicated cabs ensuring safe and eficient operation.
StructuralMaterials
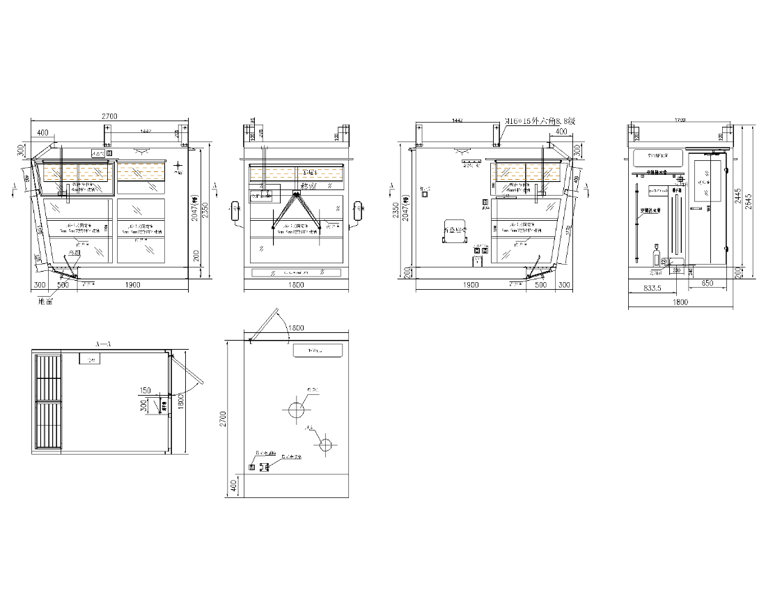
Externally constructed with 2.0mm cold-rolled steelwelding,featuring extruded profiles + bent steel panelcomposite framework.Interior finished with formicapanels,withfull powder coatingfor corrosion protection.
Safety Features
5mm tempered glass windows,aluminum slidingwindows,industrial-grade door locks and safetyguardrails ensure optimalvisibility and security.
Design characteristics
Lightweight high-load-bearing structure with modularassembly,engineered for harsh operating conditions while complying with lS0 6385 ergonomic standards.
01 lumination Luminaire
02 Ventilation Fan
03 Switch & Receptacle
04 Fire Extinguisher
05 Electric Alarm Bell
06 Foot-operated Switch
07 Coat Hook
08 Limit Switch
09 ManualWindshield Wiper
01 Acoustic Alarm Device
02 EmergencyLightingSystem
03 Air Conditioning Unit
04 Coordinated Control Console
05 Curtain Assembly
06 Leatherette&SteelPanelInterior
07 Ancilary Accessories

Scan the QR code