
Widely applied in lifting and transport machinery across construction, energy, mining, transportation and logisticssectors.In construction sector for tower cranes and overhead lifting equipment,Supports power transmission towers andwind turbine installation in energy industry;Covers both surface and underground operations in mining machinery.Port,railway, highway and airport equipment feature dedicated cabs ensuring safe and eficient operation.
Structure & Materials
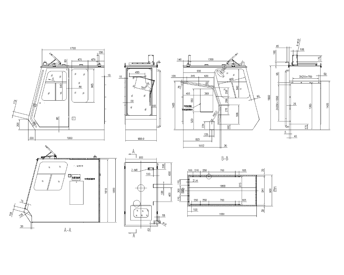
Externally constructed with precision laser-cut/weldedhigh-grade steel plates.Framework combines extrudedprofiles and bent steel panels for high strength andimpact resistance.Interior features automotive-gradefinishing, ensuring aesthetics, structural rigidity, andthermalinsulation.
Safety Features
5mm tempered glass windows and industrial-grade doorlocksensure visibilityand security.
Design Highlights
Lightweight yet high-load-bearing framework withstability forharsh conditions,compliant with ergonomic
01 Explosion-proof Luminaire
02 Ventilation Fan
03 Switch &Receptacle
04 Manual Windshield Wiper
01 Flame-Retardant Curtain
02 Coordinated Control Console
03 Electric Windshield Wiper System
04 Automotive-grade Leatherette Interior
05 Custom Spray Marking
06 AncillaryAccessories

Scan the QR code