QSC2打桩机司机室
分类:司机室系列

联系我们
咨询电话:0576-83230902
E-Mail:277960671@qq.com
适用范围

广泛应用于起重运输机械,覆盖建筑、能源、矿山、交通及物流等领域。建筑领域用于塔吊、起重机等高空设备;能源行业助力电力塔机、风电安装;矿山机械涵盖露天与深部作业。港口、铁路、公路及机场设备均配备专用司机室,保障安全高效操作。


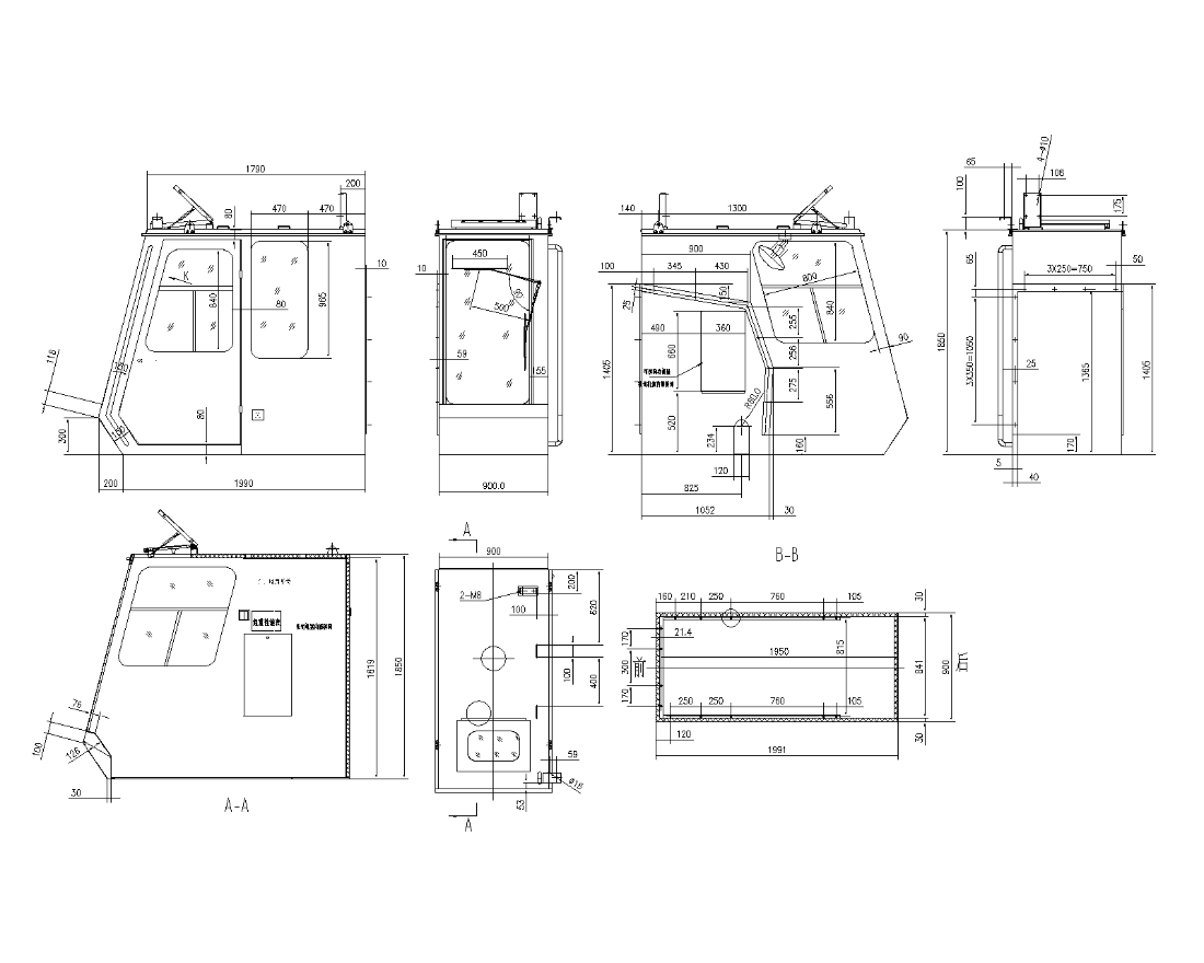
结构特点


01
结构与材料

外部采用优质钢板激光切割焊接,骨架采用型材+折弯钢板组合,高强度、高精度,抵御外力冲击。内部采用汽车工艺装饰,整体美观且具有强度高、变形小、隔热好等特点。


02
安全配置

配有5mm钢化玻璃窗和工程门锁,保障视野与安全。


03
设计特点

轻量化高承载骨架且稳定,适应恶劣工况符合人机工程学操作环境。


标准配置

01 照明灯
02 风扇
03 开关插座
04 手动雨刮器


可选配置

01 窗帘
02 联动台
03 电动雨刮器
04 内部采用仿皮装饰
05 定制化喷字
06 其他附件

QSC2.png