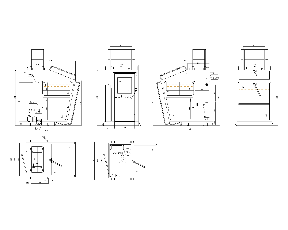
非标司机室
分类:司机室系列

联系我们
咨询电话:0576-83230902
E-Mail:277960671@qq.com


可根据客户要求定制!

非标1.png