
广泛应用于起重运输机械,覆盖建筑、能源、矿山、交通及物流等领域。建筑领域用于塔吊、起重机等高空设备;能源行业助力电力塔机、风电安装;矿山机械涵盖露天与深部作业。港口、铁路、公路及机场设备均配备专用司机室,保障安全高效操作。
优质钢板激光切割焊接,骨架采用型材+折弯钢板组合,高强度、高精度,抵御外力冲击。
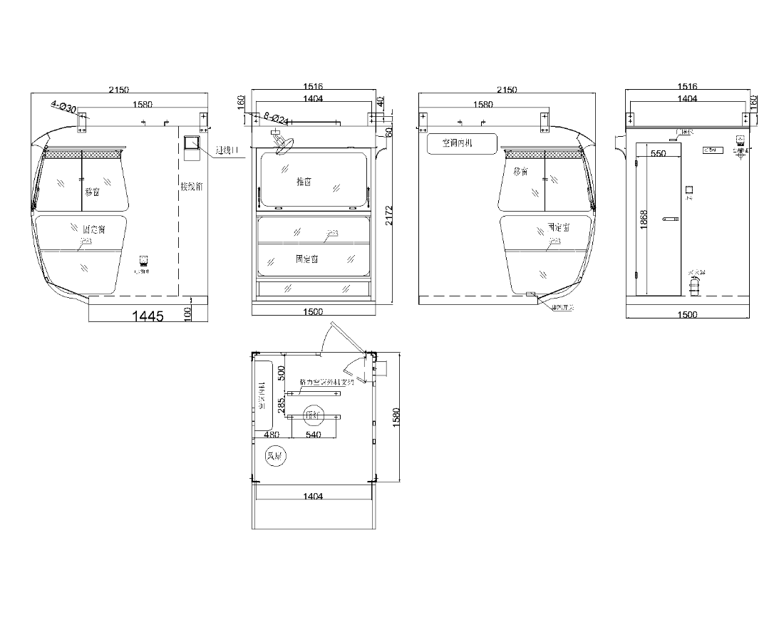
整体式铝合金移窗+5mm钢化玻璃(抗冲击透光),轻便密封,支持通风与视野调节。并且配有工程门锁,保障安全。
轻量化高承载骨架且稳定,适应恶劣工况,符合人机工程学操作环境。
01 照明灯
02 风扇
03 开关插座
04 手动雨刮器
01 开关箱
02 应急灯
03 灭火器
04 空调
05 联动台
06 窗帘
07 电动雨刮器
08 喷字
09 内部采用仿皮/钢板装饰
10 其他附件
