QST5塔机司机室
分类:司机室系列

联系我们
咨询电话:0576-83230902
E-Mail:277960671@qq.com
适用范围

广泛应用于起重运输机械,覆盖建筑、能源、矿山、交通及物流等领域。建筑领域用于塔吊、起重机等高空设备;能源行业助力电力塔机、风电安装;矿山机械涵盖露天与深部作业。港口、铁路、公路及机场设备均配备专用司机室,保障安全高效操作。


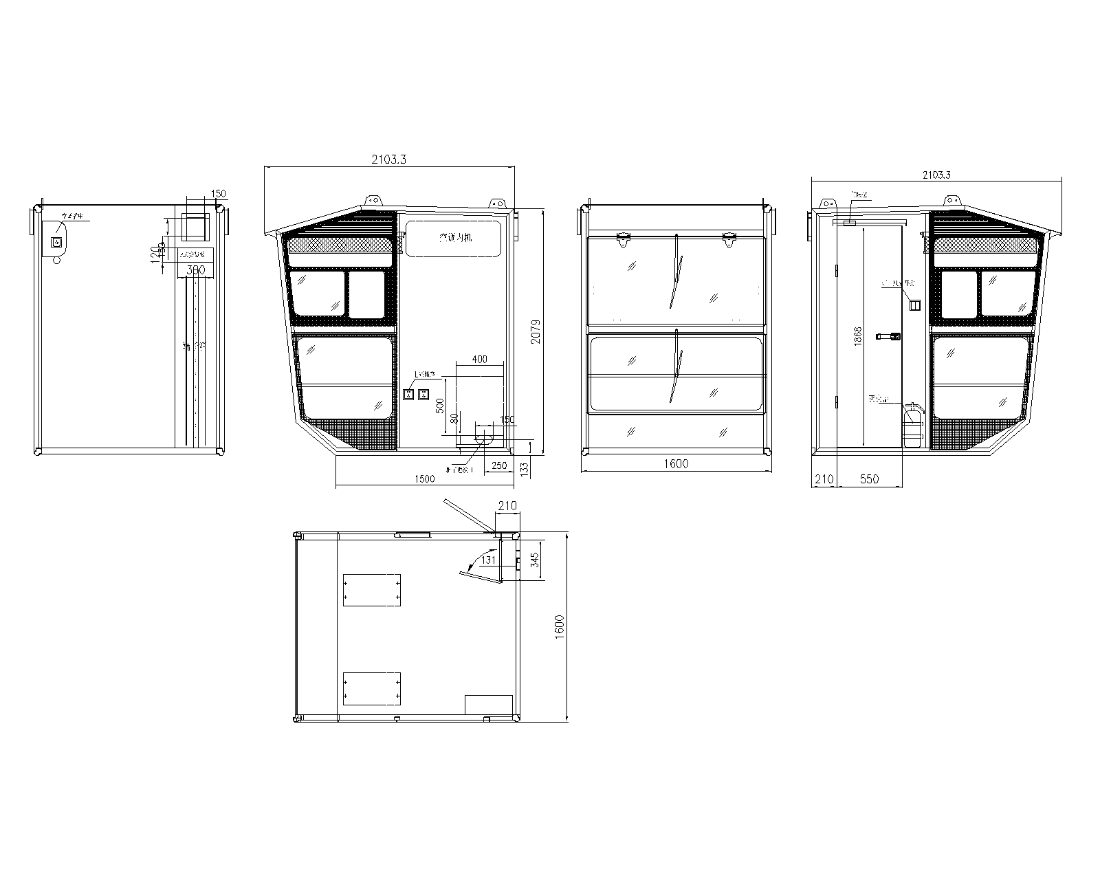
结构特点


01
结构与材料

优质钢板激光切割焊接,骨架采用型材+折弯钢板组合,高强度、高精度,抵御外力冲击。


02
安全配置

整体式铝合金移窗+5mm钢化玻璃(抗冲击透光),轻便密封,支持通风与视野调节。并且配有工程门锁,保障安全。


03
设计特点

轻量化高承载骨架且稳定,适应恶劣工况,符合人机工程学操作环境。


标准配置

01 照明灯

02 风扇

03 开关插座

04 手动雨刮器


可选配置

01 开关箱

02 应急灯

03 灭火器

04 空调

05 联动台

06 窗帘

07 电动雨刮器

08 喷字

09 内部采用仿皮/钢板装饰

10 其他附件

QST5.png