
广泛应用于起重运输机械,覆盖建筑、能源、矿山、交通及物流等领域。建筑领域用于塔吊、起重机等高空设备;能源行业助力电力塔机、风电安装;矿山机械涵盖露天与深部作业。港口、铁路、公路及机场设备均配备专用司机室,保障安全高效操作。
外部3.0mm冷轧板焊接,骨架采用型材+折弯钢板组合,内部铁板装修,整体喷漆防腐。
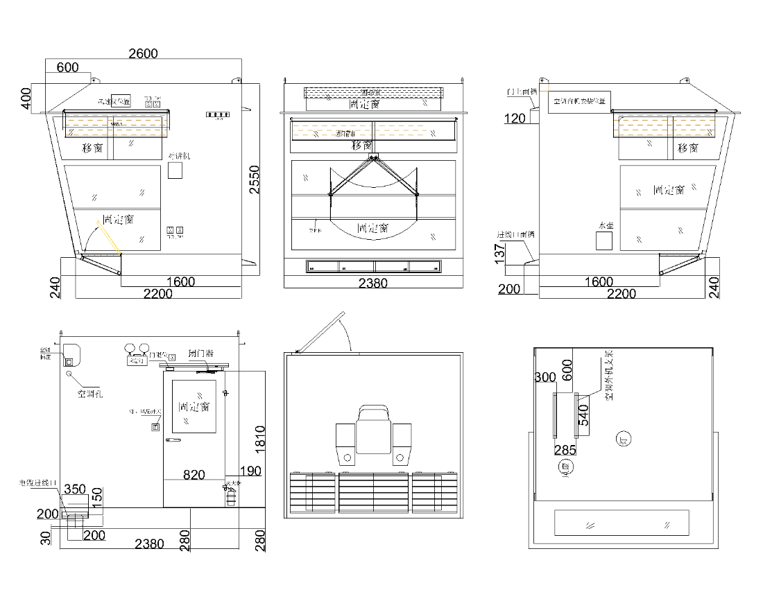
5mm钢化玻璃窗、铝合金移窗、工程门锁及安全护栏,保障视野与安全。
轻量化高承载骨架,模块化装配,适应恶劣工况,符合人机工程学操作环境。
01 照明灯
02 风扇
03 开关插座
04 灭火器
05 电铃
06 脚踏开关
07 衣帽钩
08 限位开关
09 手动雨刮器
01 报警器
02 应急灯
03 空调
04 联动台
05 窗帘
06 内部采用仿皮/钢板装饰
07 其他附件
