QSG7港机司机室
分类:司机室系列

联系我们
咨询电话:0576-83230902
E-Mail:277960671@qq.com
适用范围

广泛应用于起重运输机械,覆盖建筑、能源、矿山、交通及物流等领域。建筑领域用于塔吊、起重机等高空设备;能源行业助力电力塔机、风电安装;矿山机械涵盖露天与深部作业。港口、铁路、公路及机场设备均配备专用司机室,保障安全高效操作。


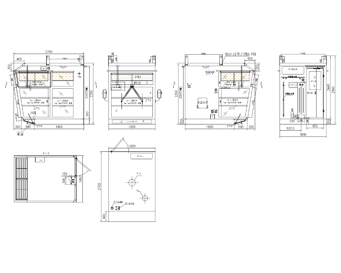
结构特点


01
结构与材料

外部3.0mm冷轧板焊接,骨架采用型材+折弯钢板组合,内部铁板装修,整体喷漆防腐。


02
安全配置

5mm钢化玻璃窗、铝合金移窗、工程门锁及安全护栏,保障视野与安全。


03
设计特点

轻量化高承载骨架,模块化装配,适应恶劣工况,符合人机工程学操作环境。


标准配置

01 照明灯

02 风扇

03 开关插座

04 灭火器

05 电铃

06 脚踏开关

07 衣帽钩

08 限位开关

09 手动雨刮器


可选配置

01 报警器

02 应急灯

03 空调

04 联动台

05 窗帘

06 内部采用仿皮/钢板装饰

07 其他附件

QSG7.png