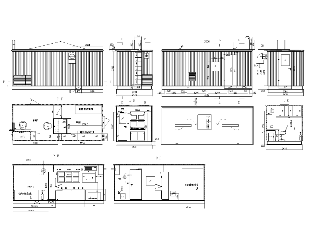
QSD3电气房
分类:电气房

联系我们
咨询电话:0576-83230902
E-Mail:277960671@qq.com
适用范围

广泛应用于起重运输机械,覆盖建筑、能源、矿山、交通及物流等领域。建筑领域用于塔吊、起重机等高空设备;能源行业助力电力塔机、风电安装;矿山机械涵盖露天与深部作业。港口、铁路、公路及机场设备均配备专用司机室,保障安全高效操作。


技术参数

墙体外层采用厚度不小于2mm的钢板/瓦楞板,中间采用隔热保温的A级材料,内层装有防火内封钢板,具有良好的防火、保温、隔热性能。底座和骨架采用型材+折弯钢板组合,确保长期使用的结构稳定性。

标准配置

01 三防照明灯
02 灭火器
03 开关插座


可选配置

01 排风扇
02 空调
03 应急灯
04 烟感器
05 其他附件

QSD3.png